Tiny House On Wheels Plans
Tiny House On Wheels Plans
![]() |
| Tiny House Trailer |
![]() |
| 18 Tiny Houses On Wheels Design Ideas |
![]() |
| Tiny House On Wheels Home Tour Erin |
![]() |
| Tiny House On Wheels Home Tour Erin |
![]() |
| Tiny House On Wheels Home Tour Erin |
![]() |
| Tiny House On Wheels Home Tour Erin |
![]() |
| Tiny House Plans The Tiny Project |
![]() |
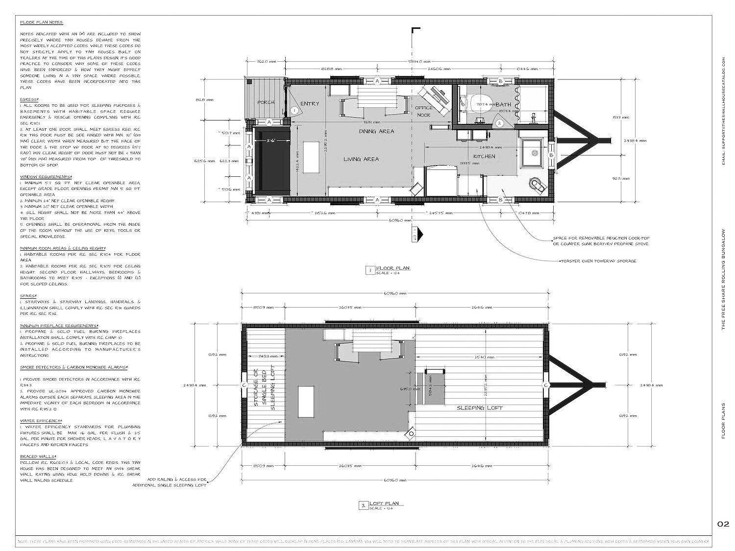
| Floor Plans For Your Tiny House On |
![]() |
| Floor Plans For Your Tiny House On |
![]() |
| Design A Tiny House On Wheels Tips And |
![]() |
| On Wheels By Big Freedom Tiny Homes |
![]() |
| Tiny House Floor Plans 32 Tiny Home |
![]() |
| The Luminaire Tiny House On Wheels |
![]() |
| Moschata Tiny House On Wheels Metric |
![]() |
| Tiny House Floor Plans |
![]() |
| Floor Plans For Your Tiny House On |
![]() |
| Floor Plans For Your Tiny House On |
![]() |
| Tiny House |














0 comments